Máris Mozak Leblon

Máris Mozak Leblon – Localizado na Rua Conde de Bernadotte 55, Máris tem um pouco de tudo à sua volta. E possibilita o transitar fluido entre liberdade, trabalho, bem-estar e conveniência.
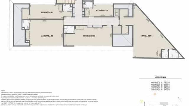
São 31 espaços comerciais entre 17m² e 67m², sendo: 8 gardens, 18 tipos e 5 unidades mansardas.
Perto da Bartolomeu Mitre, Dias Ferreira e a poucos passos da Ataulfo de Paiva, o prédio está em um ponto-chave, em uma das ruas mais efervescentes do Leblon. Um local perfeito para reuniões e encontros, com o privilégio de ter a praia como refúgio e ter a escolha de encerrar o dia nos bares, restaurantes e cafés especiais espalhados ao seu redor.
O empreendimento está em uma área onde é preservada a singularidade do Leblon, com pequenos edifícios, que fazem parte da Área de Proteção do Ambiente Cultural – APAC Leblon, que busca valorizar a memória local.
Localização do Máris Mozak Leblon

Ficha Técnica Máris Mozak Leblon
- Endereço: Rua Conde de Bernadotte, 55 – Leblon, Rio de Janeiro – RJ, 22430-200
- Condomínio: Máris Mozak.
- Incorporador: Mozak.
- Unidades: 1 edifício com 31 unidades.
- Pavimentos: 03 pavimentos.
- Unidades: 8 gardens, 18 tipos e 5 unidades mansardas.
- Metragem: 17 a 67m².
- Bicicletário.
Fachada do Máris Mozak Leblon


Infraestrutura do Empreendimento Máris Mozak Leblon




INFRAESTRUTURA:
Segurança:
- Alarme e sensores perimetrais infravermelhos.
- Circuito CFTV.
- Infraestrutura para botão antipânico.
Sustentabilidade:
- Bacias com sistema dual flush com economizador de água.
- Áreas comuns entregues com lâmpadas LED.
- Medidores individuais de água.
- Iluminação das áreas comuns com sensor de presença (estacionamento, hall dos pavimentos e escadas).
- Irrigação automatizada
Banheiro PNE.
Bicicletário.
Lounge Externo.
Salas do Máris Mozak Leblon





Plantas do Máris Mozak Leblon
Diferenciais das Salas do Máris Mozak Leblon
Personalização:
O design encanta, os detalhes transformam o ordinário em extraordinário, transmitem autenticidade e, quando combinados em harmonia, têm o poder de refletir a essência de cada um.
O Mozak Ateliê é um serviço exclusivo de personalização de unidades Mozak, capaz de entregar mais do que um imóvel: um espaço único, com alma, do seu jeito.
Para isso, você participa de todas as etapas de criação, customizando o projeto para que ele seja uma extensão da sua identidade e estilo.
Coleções:
Você poderá escolher os materiais que melhor se encaixam com o seu dia a dia e atendem às suas necessidades, dentre as opções disponibilizadas previamente pela Mozak.
Materiais que vão valorizar a sua unidade, como:
- Piso.
- Parede.
- Bancadas.
- Louças.
- Metais.
Conheça mais a Região do Máris Mozak Leblon
Leblon – A praia com vista dos Dois Irmãos, as ruas arborizadas, a arquitetura, os restaurantes renomados e o clima solar fazem do Leblon um lugar único.
Um dos bairros mais conhecidos do Rio de Janeiro, o Leblon une moda , gastronomia , conveniência e comércio, com charme e sofisticação. Ateliês, livrarias, restaurantes de chefs renomados, academia, hotéis, escritórios, tudo se mistura, ali, a poucos passos da praia.
É a junção do urbano com a natureza que faz este lugar ser tão especial. Que possibilita um dia inteiro por suas ruas, praças, areias, na delícia de contemplar e viver todo seu ritmo.
Solicite o valor e condições de pagamento aos nossos consultores.
O Empreendimento localiza-se próximo aos Bairros do Ipanema, Copacabana, Lagoa, Jardim Botânico e Leme.
Localiza-se na Zona Sul, Cidade do Rio de Janeiro.
O empreendimento possui apartamentos com metragens entre 17 a 67m².




